INCON Luxury
Okná INCON Luxury sú vhodným výrobkom pre zákazníkov s vysokými nárokmi. Sú vyrábané zo 6-komorovéhho profilu Inoutic Prestige s predsadeným alebo rovným krídlom. Plastové okná INCON Luxury majú stavebnú hĺbku 76 mm a 3 dorazové tesnenia medzi rámom a krídlom. Rámy a krídla sú vystužené oceľovou pozinkovanou výstuhou. Pri bielych oknách sú všetky tesnenia bledosivé. Súčiniteľ prechodu tepla rámu je Uf=1,1 W/m²K. Výhodou plastového okna INCON Luxury je veľká variabilnosť zasklenia s trojsklom. V oknách sa štandardne používa skryté odvodnenie, mikrovetranie so 4 nastaviteľnými polohami a poistka proti chybnej manipulácií s kľučkou. Pre svoje vynikajúce technické parametre v kombinácií s izolačným trojsklom je vhodné aj pre použitie do nízkoenergetických budov. Okná INCON Luxury laminované fóliou imitujúcou drevo sú veľmi výhodnou alternatívou drevenných eurookien.
![]() |
![]() |
| Luxury rovné krídlo | Luxury predsadené krídlo |
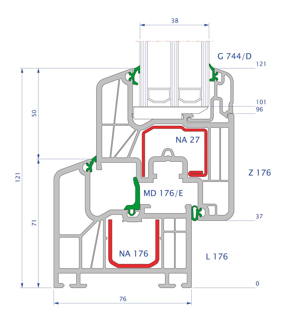
Vlastnosti profilu plastových okien a dverí INCON Luxury (Inoutic Prestige):
- Systém so vstavanou hĺbkou 76 mm a so 6 komorami
- Hodnoty tepelnej priestupnosti celým oknom Uw až 0,69 W/m2K – dokonca prekračujú hodnoty normy EnEV 2012 (Uw = 0,95 W/m2K).
- Sskosenie 20° pre zaistenie odvodu vody, elegantný design
- Krídla môžu byť realizované v 3 rôznych variantoch
- Možnosť zasklenia silnými tepelnoizolačnými alebo zvukotesnými sklami v hrúbke až 44 mm
- Vnútorná dvojpätková zasklievacia lišta pre vyššiu odolnosť proti vlámaniu
- Výška drážky pre sklo 25 mm na obmedzenie kondenzácie vody na okne
- 3 priebežné zvárateľné tesnenia TPE v prípade systému so stredovým tesnením, 2 v prípade systému s dorazovým tesnením
- Použitie špeciálnej technológie lepenia zasklenia s certifikátom RAL umožňuje realizáciu okien s veľkosťou až do výšky 2,60 m
- Zvuková izolácia až 47 dB
- 40 rôznych farieb fólií
- Profil Prestige je možné dodať aj v predsadenom hranatom variante alebo s hliníkovým krytom, ktorý ponúka neobmedzený výber farieb.







