INCON Exclusive
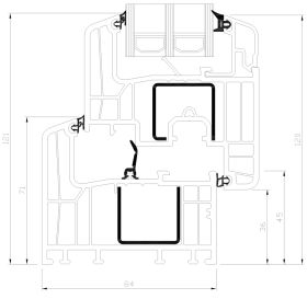
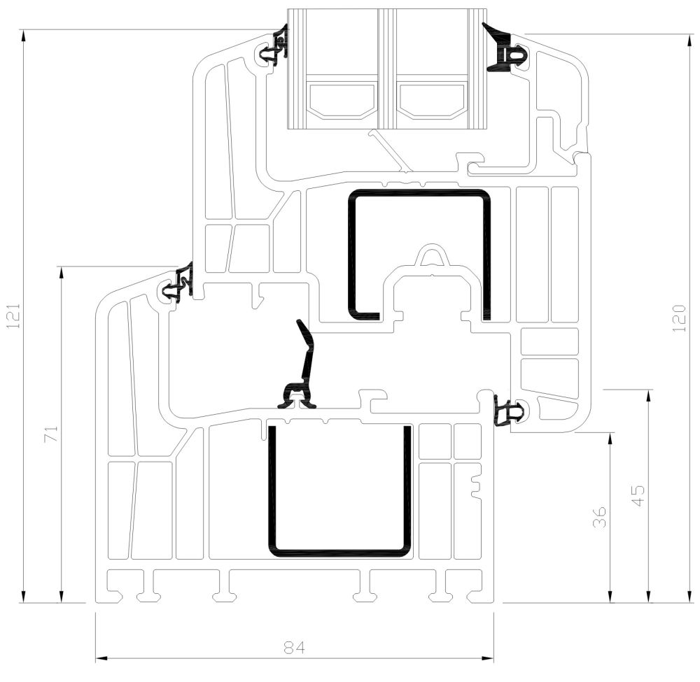
Okná INCON Exclusive ponúkajú riešenia pre okná v nízkoenergetických i pasívnych domoch. Základom nových okien sú plastové profily Inoutic Eforte. Ich stavebná hĺbka je 84 mm a pri použití bežnej oceľovej výstuže a bez prídavných izolačných prvkov dosahujú najlepší súčiniteľ prechodu tepla profilu na trhu Uf=0,95 W/m². Pri použití trojskla s Ug=0,5 W/m²K dosiahnu okná INCON Exclusive vynikajúcu hodnotu Uw=0,72 W/m²K, ktorá je lepšia ako hodnota požadovaná pre pasívne domy. Okná INCON Exclusive disponujú vylepšeným systémom tesnení, ktorý spoľahlivo chráni okno pred poveternostnými vplyvmi a veľmi dobre zvukovo izolujú. V oknách sa štandardne používa skryté odvodnenie, mikrovetranie so 4 nastaviteľnými polohami a poistkou proti chybnej manipulácií s kľučkou. Použitie overených materiálov, akými sú profily z PVC a oceľová výstuž,umožnilo dosiahnuť vynikajúcu stabilitu bielych a farebných okien a v neposlednom rade aj ich bezproblémovú stopercentnú recykláciu. Uvedené technické parametre sú v porovnaní s konkurenčnými výrobkami jedinečné.
Vlastnosti profilu plastových okien a dverí INCON Exclusive (Inoutic Eforte):
- Systém so vstavanou hĺbkou 84 mm so 6 komorami
- Jedinečná hodnota súčiniteľu tepelnej priestupnosti okenného rámu Uf = 0,95 W/m2K s bežnou oceľovou výstuhou
- Hodnoty tepelnej priestupnosti celým oknom Uw až 0,64 W/m2K ďaleko prekračujú požiadavky pre štandard pasívneho domu.
- Štandard pasívneho domu je možné dosiahnuť pomocou bežného trojitého zasklenia.
- Nový systém tesnení: popri troch priebežných tesneniach zaisťuje ešte lepšiu tepelnú izoláciu aj tesnenie v zasklievacej drážke.
- Zasklenie s hrúbkou až 56 mm pre veľmi silné tepelnoizolačné alebo zvukotesné sklá
- Vnútorná dvojpätková zasklievacia lišta pre vyššiu odolnosť proti vlámaniu
- Výška drážky pre zasklenie 25 mm na obmedzenie tvorby kondenzácie na okne
- Použitie špeciálnej technológie lepenia zasklenia umožňuje realizáciu okien až do výšky 2,60 m
- Zvuková izolácia až 47 dB (trieda 5)
- Štíhly profil s úzkou pohľadovou výškou 120 mm a skosením 20° pre dobrý odvod vody
- 40 rôznych farieb fólií a neobmedzený výber farieb profilu s hliníkovým krytom
- Voliteľný hliníkový kryt dodáva klasický vzhľad hliníkového okna, bez toho aby bolo nutné sa vzdať početných výhod, ktoré ponúkajú okná plastové.






