INCON Elegance
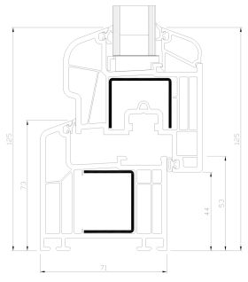
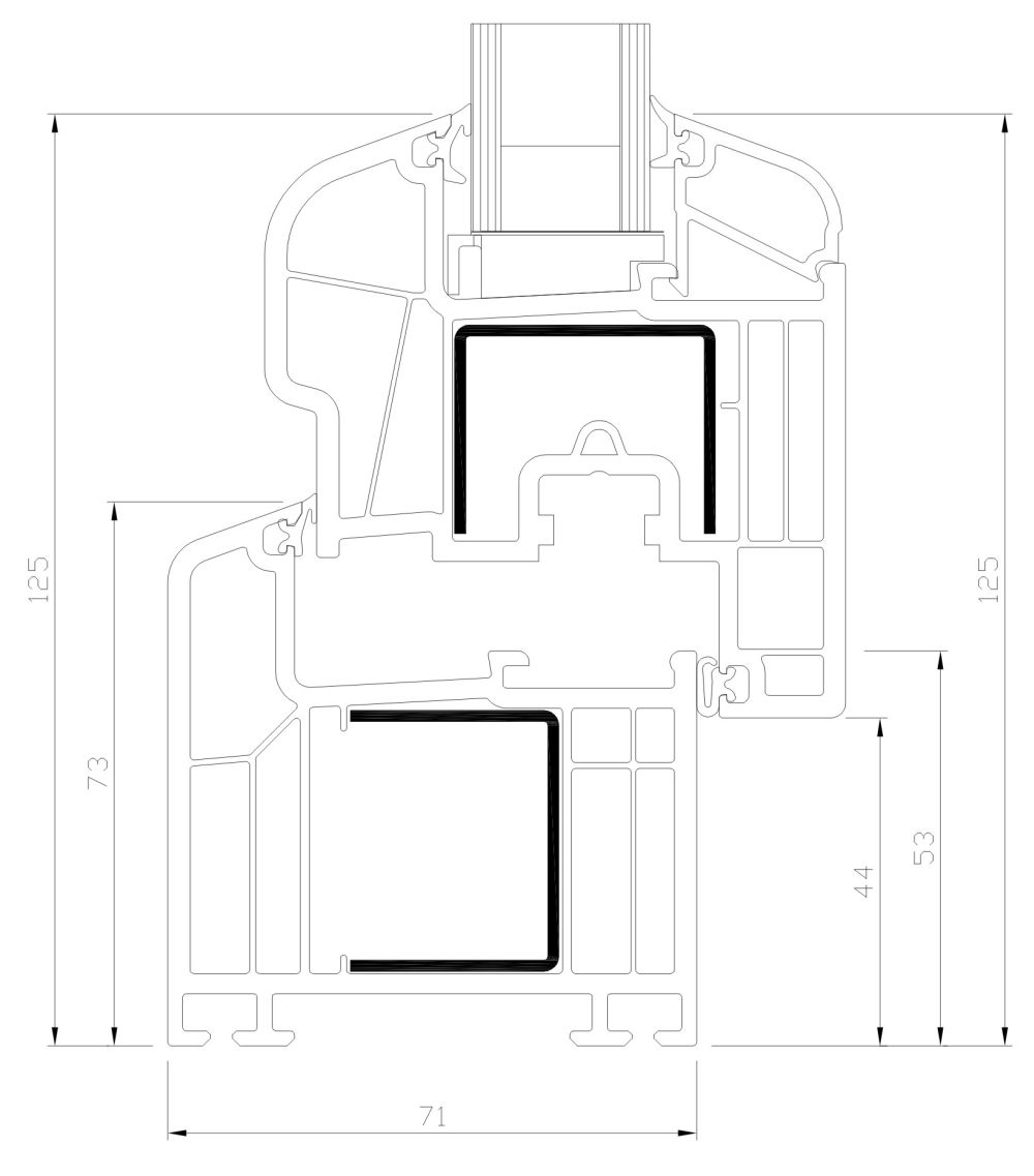
Profil plastových okien Inoutic Arcade je vyrábaný s dlhoročnou praxou a je tak zárukou najvyššej kvality. Kombinuje v sebe moderný dizajn, výborne technické parametre a zaujímavú cenu. Okná INCON Elegance sú vyrábané z 5 - komorových profilov Inoutic Arcade so stavebnou hĺbkou 71 mm. Súčiniteľ prechodu tepla rámu je Uf=1,2 W/m²K. V oknách sa štandardne používa skryté odvodnenie. Jednoduchú a bezpečnú manipuláciu zabezpečuje kovanie Winkhaus. Okná INCON Elegance sú vďaka výborným tepelnoizolačným vlastnostiam vhodné do všetkých typoch rekonštrukcií domov aj novostavieb. Biele plastové okná obsahujú bledosivé tesnenie. Hladký povrch navyše nevyžaduje žiadnu zvláštnu údržbu a odoláva všetkým poveternostným podmienkam.
![]() |
![]() |
| Elegance rovné krídlo | Elegance predsadené krídlo |
Vlastnosti profilu plastových okien a dverí INCON Elegance (Inoutic Arcade):
- Systém so vstavanou hĺbkou 71 mm s 5 komorami
- Hodnota súčiniteľu tepelnej priestupnosti rámu Uf = 1,2 W/m2K
- hodnota tepelnej priestupnosti oknom Uw až 0,77 W/m2 prekračuje hodnoty požadované normou EnEV 2012 (Uw = 0,95 W/m2K)
- Arcade: predsadené a rovné krídlo, skosenie 20°
- Zasklenie silnými tepelnoizolačnými alebo zvukotesnými sklami až o hrúbke 40 mm
- Vnútorná dvojpätková zasklievacia lišta pre vyššiu odolnosť proti vlámaniu
- Dve priebežné zvárateľné tesnenia TPE
- Zvuková izolácia až 44 dB (trieda 4)
- Výber z palety 35 farieb







